相原借家(176-55)

7.3万円

管理 / 共益費 -

広島県東広島市八本松町正力176-55

山陽本線「寺家」駅徒歩41分

山陽本線「八本松」駅徒歩50分

山陽本線「西条」駅

賃料
7.3万円
敷金(保証金)
2ヶ月(-)
間取り
3LDK
向き
南東
所在地
広島県東広島市八本松町正力176-55
管理 / 共益費
-
礼金
1ヶ月
建物面積
74.52㎡
築年月
2008年4月(築17年)
交通

山陽本線寺家」駅 徒歩41分車9分 3.6km

山陽本線八本松」駅 徒歩50分車9分 4.0km

山陽本線西条」駅 車15分 6.3km

物件の特徴

  • バストイレ別

  • 室内洗濯機置場

  • カウンターキッチン

  • 独立洗面台

セールスポイント

川上小・磯松中校区。小型犬・ネコが飼える戸建て賃貸3LDKタイプです。駐車場2台付無料!

ポイント

基本情報

保証金
-
敷引 / 償却
- / -
敷金積み増し
ペット飼育:1ヶ月
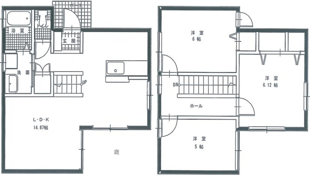
間取り / 詳細
3LDK
LDK 14.8帖/洋室 6.1帖/洋室 6.0帖/洋室 65.0帖
向き
南東
建物面積
74.52㎡
バルコニー
(テラス)面積
-
階建て
2階建
建物構造
木造
築年月
2008年4月(築17年)
種別
一戸建て
保険会社 / 料金
有  / -
保証会社 / 料金
必加入 / 全保連
保証会社初期費用:総賃料の50%、更新料13000円/年
駐車場
有(2台) 0円
現況
居住中
入居可能時期
2026年01月下旬
その他条件
自治会費:1,200円(月額)  浄化槽代:4,500円(月額)

設備条件

設備条件
  • ペット相談 / 2人入居可 / 室内洗濯機置場 / フローリング / 専用庭 / プロパンガス / 公営水道 / 浄化槽排水 / 電気有 / 駐車2台可 / ガスコンロ / カウンターキッチン / バス・トイレ別 / 追焚機能浴室 / 温水洗浄便座 / 洗髪洗面化粧台 / 独立洗面台 / エアコン / シューズボックス / BS

その他

契約期間
2年
賃貸区分
一般
更新料
-
更新事務手数料
-
総戸数
-
特優賃
-
取引態様
一般媒介
物件番号
42331743
管理コード
-
情報更新日
2026年01月19日
次回更新予定日
2026年02月02日
取扱会社
  • 有限会社アクシアエステート
  • 広島県東広島市西条御条町5番5号 
  • TEL:082-421-2501
  • 広島県知事 (7) 第8141号
  • 公益社団法人全国宅地建物取引業保証協会
備考
14.8帖の広めのリビング、全洋室の3LDKタイプ、 室内小型犬又はネコの飼育が可能です(一匹のみ)。 駐車場2台付の戸建て住宅ならではのゆとりのスペース、専用庭付の解放感のあるお部屋になっています。ペット(室内小型犬OR猫1匹のみ)飼育時敷金1ヶ月増/駐車場2台付無料/自治会費:年額1,200円/浄化槽代月額 4,500円/BS/追い焚き機能付浴槽・温水洗浄便座

周辺施設

  • セブンイレブン・東広島八本松正力店の画像

    コンビニエンスストア

    セブンイレブン・東広島八本松正力店

    380m(5分)

  • 川上東部保育所の画像

    保育園

    川上東部保育所

    740m(10分)

  • 東広島市立磯松中学校の画像

    中学校

    東広島市立磯松中学校

    1227m(16分)

  • セブンイレブン東広島八本松米満店の画像

    コンビニエンスストア

    セブンイレブン東広島八本松米満店

    1661m(21分)

  • 東広島医療センターの画像

    総合病院

    東広島医療センター

    2336m(30分)

  • 東広島市立川上小学校の画像

    小学校

    東広島市立川上小学校

    2379m(30分)

  • 八本松病院の画像

    総合病院

    八本松病院

    2488m(32分)

  • ファミリーマート八本松磯松店の画像

    コンビニエンスストア

    ファミリーマート八本松磯松店

    2504m(32分)

  • 西条上寺家簡易郵便局の画像

    郵便局

    西条上寺家簡易郵便局

    2635m(33分)

  • ゆめマート 八本松の画像

    スーパー

    ゆめマート 八本松

    2681m(34分)

  • ショージ寺家駅前の画像

    スーパー

    ショージ寺家駅前

    2765m(35分)

  • ウォンツ西条西店の画像

    ドラッグストア

    ウォンツ西条西店

    2954m(37分)

  • マックスバリュ西条西店の画像

    スーパー

    マックスバリュ西条西店

    2975m(38分)

  • ジュンテンドー八本松店の画像

    ホームセンター

    ジュンテンドー八本松店

    3056m(39分)

  • ディスカウントドラッグコスモス八本松店の画像

    ドラッグストア

    ディスカウントドラッグコスモス八本松店

    3529m(45分)

  • ミスターマックス八本松店の画像

    ホームセンター

    ミスターマックス八本松店

    4515m(57分)

近隣の物件

  1. 山田荘

    東広島市西条町御薗宇

    3LDK (68.00㎡)

    6万円

  2. カイチビル

    東広島市西条御条町

    3LDK (76.55㎡)

    5.5万円

  3. 第11正田ビル

    東広島市西条上市町

    1K (23.19㎡)

    3.8万円

  4. 第15正田ビル

    東広島市西条西本町

    1K (24.00㎡)

    3万円

相原借家(176-55)

相原借家(176-55)

7.3万円

-

3LDK(74.52㎡)

お気軽にお問い合わせください

無料お問い合わせ

有限会社アクシアエステート

082-421-2501

9:30~18:00

(休:水)