相原借家(176-55)

7.3万円 管理/共益費 -

広島県東広島市八本松町正力176-55

山陽本線「寺家」駅徒歩41分

山陽本線「八本松」駅徒歩50分

山陽本線「西条」駅

価格
7.3万円 管理/共益費 -
間取り/面積
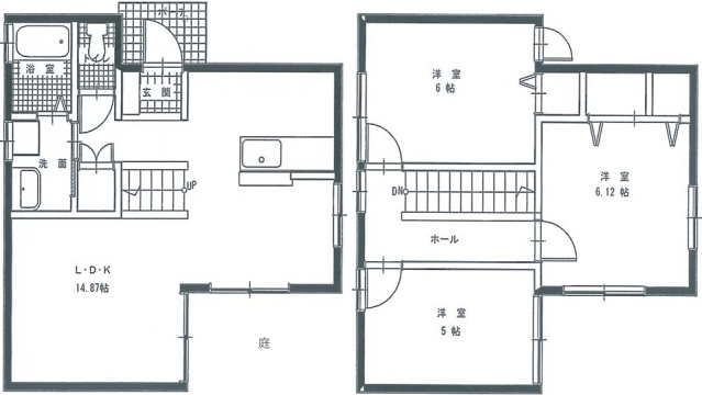
3LDK/74.52㎡
所在地
広島県東広島市八本松町正力176-55
築年
2008年4月(築17年)
駐車
有(2台)
交通

山陽本線寺家」駅 徒歩41分車9分 3.6km

山陽本線八本松」駅 徒歩50分車9分 4.0km

山陽本線西条」駅 車15分 6.3km

相原借家(176-55)の基本情報

物件名
相原借家(176-55)
価格
7.3万円
管理/共益費
-
築年月
2008年4月(築17年)
総戸数
-
所在地
広島県東広島市八本松町正力176-55
交通

山陽本線寺家」駅 徒歩41分車9分 3.6km

山陽本線八本松」駅 徒歩50分車9分 4.0km

山陽本線西条」駅 車15分 6.3km

相原借家(176-55)の詳細情報

設備条件
  • 駐車2台可
設備(その他)
    -
駐車場/月額
有(2台)/0円
用途地域
-
戸数
- / -
取引態様
一般媒介

相原借家(176-55)で募集中の物件

  1. 1-2階

    22.54坪 (74.52㎡)

    7.3万円(3238.69円/坪)

周辺施設

  • セブンイレブン・東広島八本松正力店の画像

    コンビニエンスストア

    セブンイレブン・東広島八本松正力店

    380m(5分)

  • 川上東部保育所の画像

    保育園

    川上東部保育所

    740m(10分)

  • 東広島市立磯松中学校の画像

    中学校

    東広島市立磯松中学校

    1227m(16分)

  • セブンイレブン東広島八本松米満店の画像

    コンビニエンスストア

    セブンイレブン東広島八本松米満店

    1661m(21分)

  • 東広島医療センターの画像

    総合病院

    東広島医療センター

    2336m(30分)

  • 東広島市立川上小学校の画像

    小学校

    東広島市立川上小学校

    2379m(30分)

  • 八本松病院の画像

    総合病院

    八本松病院

    2488m(32分)

  • ファミリーマート八本松磯松店の画像

    コンビニエンスストア

    ファミリーマート八本松磯松店

    2504m(32分)

  • 西条上寺家簡易郵便局の画像

    郵便局

    西条上寺家簡易郵便局

    2635m(33分)

  • ゆめマート 八本松の画像

    スーパー

    ゆめマート 八本松

    2681m(34分)

  • ショージ寺家駅前の画像

    スーパー

    ショージ寺家駅前

    2765m(35分)

  • ウォンツ西条西店の画像

    ドラッグストア

    ウォンツ西条西店

    2954m(37分)

  • マックスバリュ西条西店の画像

    スーパー

    マックスバリュ西条西店

    2975m(38分)

  • ジュンテンドー八本松店の画像

    ホームセンター

    ジュンテンドー八本松店

    3056m(39分)

  • ディスカウントドラッグコスモス八本松店の画像

    ドラッグストア

    ディスカウントドラッグコスモス八本松店

    3529m(45分)

  • ミスターマックス八本松店の画像

    ホームセンター

    ミスターマックス八本松店

    4515m(57分)

近隣の物件

  1. 東広島市西条上市町

    1K (17.39㎡)

    3万円

  2. 東広島市西条上市町

    3DK (53.76㎡)

    6万円

  3. 東広島市三永2丁目

    3LDK (64.00㎡)

    6.7万円

  4. 東広島市高屋町宮領

    1K (26.21㎡)

    3万円

よく見られている物件

  1. 東広島市西条御条町

    3LDK (76.55㎡)

    5.5万円

  2. 東広島市西条町御薗宇

    3LDK (68.00㎡)

    6万円

  3. 東広島市西条上市町

    1K (23.19㎡)

    3.8万円

  4. 竹原市西野町

    2LDK (58.53㎡)

    4.15万円

相原借家(176-55)

お気軽にお問い合わせください

無料お問い合わせ

有限会社アクシアエステート

082-421-2501

9:30~18:00

(休:水)